新着物件

 
HOME | 新着物件

新着アパート情報

PICK UP

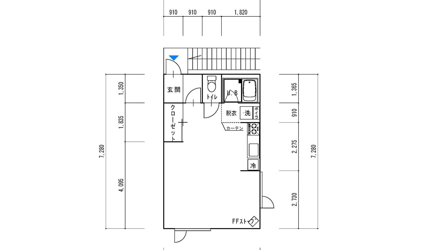
アパート賃貸

1LDK (正面左上部)

入居者募集中。(内覧可)

※入居可能日 6月下旬頃(予定)
新ひだか町三石本町20-1
マルニマンション 2-A号室
木造亜鉛メッキ鋼板葺2階建て
床面積 40.1㎡
家賃:40,000円
敷金:40,000円
退去時清掃費:40,000円(退去時に敷金より償却されます)
駐車場:1台 無料
 
家賃保証会社:casa
初回保証委託料:20,000円(初回のみ)
月額サービス料1300円/月、決済手数料300円/月
 
※賃貸借契約にあたっては、家賃保証会社への保証委託契約のお申し込みが必要となります。お申し込み後、保証会社による審査を行い、審査承認後に契約手続きを進めさせていただきます。
 
※賃貸借契約は電子契約に対応しております。契約手続きのご案内をメールでお送りするため、連絡用メールアドレスをご用意ください。

 
 

間取り図

 

 

 

 

Google Map

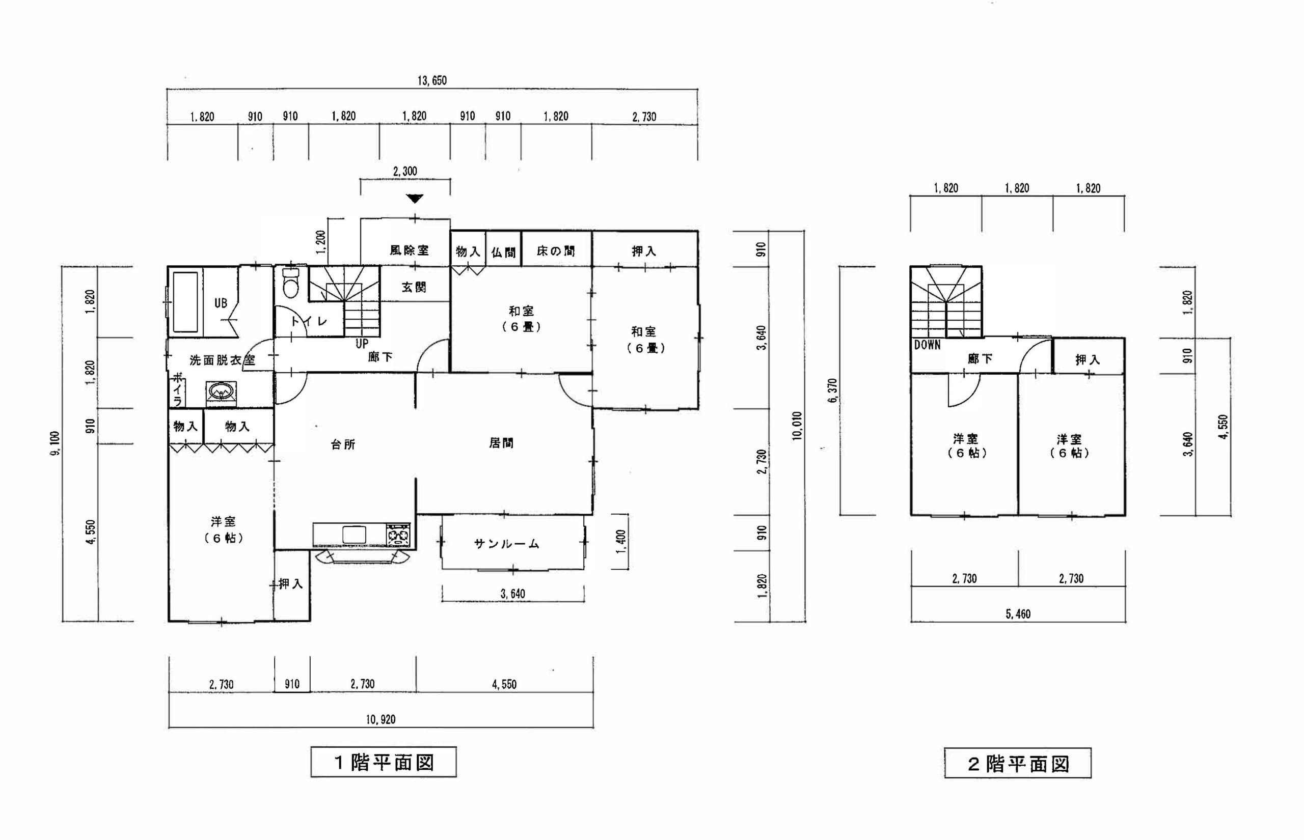
戸建賃貸

木造2階建て 5LDK

入居者募集中。(内覧可)

 
北海道日高郡新ひだか町三石港町44
 
家賃:65,000円
敷金:65,000円
退去時清掃費:65,000円
駐車場:有
 

 
 

間取り図

 

Google Map